Woonoppervlakte
Circa 178 m²
Perceeloppervlakte
Circa 318 m²
Bouwjaar
Gebouwd in 2007
Aantal kamers
4 kamers (3 slaapkamers)

Rijnstroom 16

2721 DL, Zoetermeer (Zuid-Holland)

Ruimte, comfort en een fijne ligging komen prachtig samen in deze royale twee-onder-een-kapwoning in de gewilde wijk Oosterheem. De woning beschikt over een eigen oprit voor 2 auto's, een garage, 3 ruime slaapkamers met mogelijkheid voor 4e ruime slaapkamer en een grote verzorgde tuin waar je heerlijk kunt genieten van het buitenleven. Dankzij het energielabel A+ en het keurige onderhoud is dit een woning die klaar is voor de toekomst.

De locatie is ideaal voor wie centraal maar toch rustig wil wonen. Op korte afstand vind je winkelcentrum Oosterheem met diverse winkels en voorzieningen zoals scholen, sportfaciliteiten en openbaar vervoer. Ook de uitvalswegen richting Den Haag, Leiden en Rotterdam zijn eenvoudig bereikbaar. Voor ontspanning in de natuur ligt het Bentwoud vlakbij, perfect voor een wandeling of fietstocht in het groen. Daarnaast zijn er voor kinderen verschillende speeltuintjes in de straat en is de kinderboerderij op loopafstand.

Voor meer info kijk op Rijnstroom16.nl

Indeling
Begane grond:
De verzorgde voortuin met oprit biedt toegang tot de woning, de garage en de achtertuin. Via de entree kom je in de hal met meterkast, toilet met fonteintje en de trapopgang naar de eerste verdieping. Vanuit hier stap je de lichte en bijzonder ruime woonkamer in, waar grote raampartijen en een schuifpui zorgen voor een prettige verbinding met de tuin. De goed onderhouden achtertuin is verzorgd aangelegd en biedt volop ruimte om buiten te zitten of te genieten van het groen.

Aan de voorzijde van de woning bevindt zich de royale keuken die voorzien is van diverse inbouwapparatuur zoals een dubbele combi-oven, koel-vriescombinatie, 5-pits gaskookplaat en een vaatwasser (2021).

De garage is zowel vanaf de oprit als via de achtertuin bereikbaar en biedt voldoende ruimte voor het stallen van fietsen en het gebruik als opslag.

1e etage:
De eerste verdieping beschikt over een ruime overloop met toegang tot twee royale slaapkamers, één aan de voorzijde en één aan de achterzijde van de woning. Beide kamers bieden volop ruimte voor een bed, kast en eventueel een werkhoek. De badkamer is compleet uitgevoerd en voorzien van een ligbad, aparte douche en een wastafel met meubel. Op deze verdieping bevindt zich tevens een separaat toilet, wat zorgt voor extra gemak in het dagelijks gebruik.

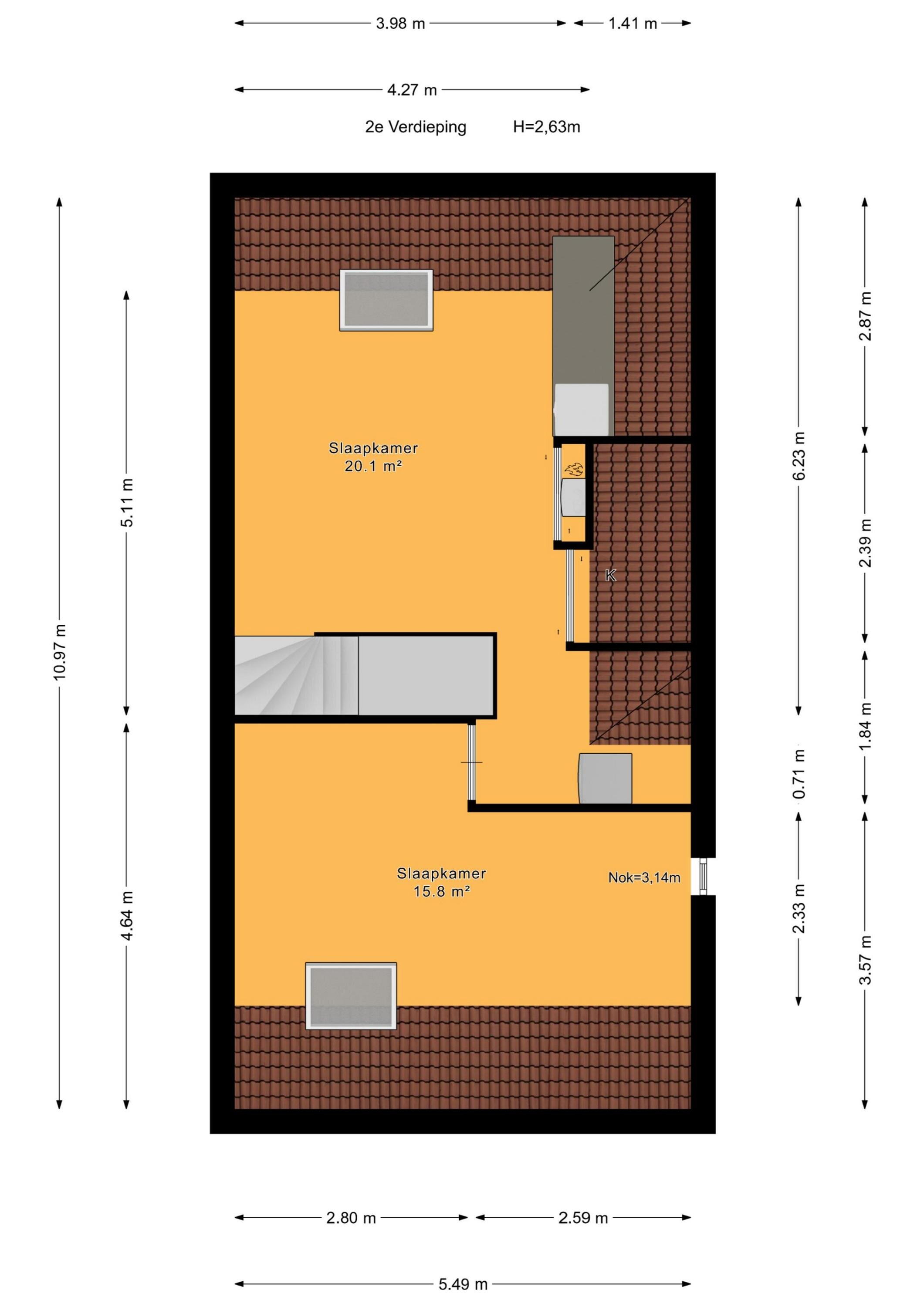
2e etage:
De tweede verdieping beschikt over een ruime overloop met aansluiting voor de wasmachine en droger, tevens ook de opstelplaats van de CV-ketel. Daarnaast is een ruime slaapkamer aan de voorzijde van de woning aanwezig en is er een mogelijkheid om nog een 4e slaapkamer te creëren op de voorzolder. Beide ruimtes profiteren van veel lichtinval en bieden volop mogelijkheden voor gebruik als slaapkamer, werkruimte of hobbykamer.

Wetenswaardigheden:
- Bouwjaar: 2007;
- Woonoppervlakte: 178 m²;
- Perceeloppervlakte: 318 m²;
- 3 ruime slaapkamers met mogelijkheid voor ruime slaapkamer op voorzolder;
- Elektrisch bedienbare zonnescherm;
- Energielabel A+;
- 10 zonnepanelen à 360 Wp (2021);
- Zeer laag energieverbruik (min 1000 kWh & 800 m³);
- Begane grond volledig voorzien van vloerverwarming;
- Kozijnen geschilderd in 2020;
- Glasvezel aansluiting;
- Oplevering in overleg.

Interesse in deze woning? Schakel direct uw eigen NVM-aankoopmakelaar in.
Uw NVM-aankoopmakelaar komt op voor uw belang en bespaart u veel tijd, geld en zorgen.
Adressen van collega NVM-aankoopmakelaars in Zoetermeer vindt u op Funda.nl.

Deze informatie is door ons met de nodige zorgvuldigheid samengesteld. Onzerzijds wordt echter geen enkele aansprakelijkheid aanvaard voor enige onvolledigheid, onjuistheid of anderszins, dan wel de gevolgen daarvan. Alle opgegeven maten en oppervlakten zijn indicatief.

Koopovereenkomst pas rechtsgeldig na ondertekening:
Een mondelinge overeenstemming tussen de particuliere verkoper en de particuliere koper is niet rechtsgeldig. Met andere woorden: er is geen koop. Er is pas sprake van een rechtsgeldige koop als de particuliere verkoper en de particuliere koper de koopovereenkomst hebben ondertekend.
Dit vloeit voort uit artikel 7:2 Burgerlijk Wetboek. Een bevestiging van de mondelinge overeenstemming per e-mail of een toegestuurd concept van de koopovereenkomst wordt overigens niet gezien als een 'ondertekende koopovereenkomst'.

Plattegronden

Overdracht

Vraagprijs
Vraagprijs: € 825.000 k.k.
Status
Verkocht
Aanvaarding
In overleg

Bouw

Object type
Eengezinswoning, 2 onder 1 kapwoning
Soort bouw
Bestaande bouw
Bouwjaar
2007
Soort dak
Samengesteld dak bedekt met bitumineuze dakbedekking

Oppervlakte en inhoud

Woonoppervlakte
178 m²
Perceeloppervlakte
318 m²
Inhoud
696 m³
Overige inpandige ruimte
16 m²

Indeling

Aantal kamers
4 kamers (3 slaapkamers)
Aantal badkamers
1 badkamer
Badkamervoorzieningen
Ligbad, douche, wastafel, wastafelmeubel
Aantal woonlagen
3 woonlagen
Voorzieningen
Mechanische ventilatie, buitenzonwering, schuifpui, glasvezel kabel, zonnepanelen

Energie

Energielabel
A
Energielabel registratie
31-10-2025
Isolatie
Dakisolatie, muurisolatie, vloerisolatie, volledig geïsoleerd, hr glas
Verwarming
Cv-ketel
Warm water
Cv-ketel
Cv ketel
Intergas hr 24/28 combiketel gas gestookt uit 2007 (eigendom)

Buitenruimte

Ligging
Aan rustige weg, in woonwijk
Tuin
Achtertuin, voortuin, zijtuin
Afmetingen achtertuin
144 m² (12.98 meter diep en 11.1 meter breed)
ligging tuin
Gelegen op het oosten

Garage

Soort garage
Aangebouwd steen
Capaciteit
1 auto
Voorzieningen
Elektra, stromend water

Parkeergelegenheid

Soort parkeergelegenheid
Openbaar parkeren, op eigen terrein

Energieverbruik in Zoetermeer

Energielabel deze woning

Energielabel A

Publicatie energielabel: 31-10-2025

Stroomverbruik per jaar

4030 kWh

(Gemiddelde twee onder een kap in Zoetermeer)

Gasverbruik per jaar

1380 m³

(Gemiddelde twee onder een kap in Zoetermeer)

* Cijfers zijn afkomstig van het CBS en bedoeld als indicatie en kunnen verschillen voor deze woning

Indicatie hypotheeklasten

Eigen inleg:
Spaargeld / overwaarde

Rente:
Laagste 10-jaars rente

Laagste 10-jaars rente

2,9% - Centraal Beheer Groen L... - NHG


3,13% - Centraal Beheer Groen... - 80%

Laagste 20-jaars rente

3,29% - Centraal Beheer Groen... - NHG


3,52% - Centraal Beheer Groen... - 80%

Laagste 30-jaars rente

3,41% - Centraal Beheer Groen... - NHG


3,74% - Centraal Beheer Groen... - 80%


Hypotheek:

Bruto maandlasten: € 0 p/m

Netto maandlasten: € 0 p/m

Hoe berekenen we dit?

Het rentepercentage is gebaseerd op de laagste 10 jaars vaste rente voor één hypotheekdeel. De vermelde rente (3.13% zonder NHG) is gecontroleerd op 15-01-2026. Deze berekening is gebaseerd op een annuïteitenhypotheek die volledig wordt afgelost, waarbij de maandlasten gedurende de gehele looptijd gelijk blijven. De werkelijke rente en netto maandlasten kunnen variëren, afhankelijk van uw persoonlijke situatie en de hypotheekverstrekker. Raadpleeg een financieel adviseur voor een nauwkeurige berekening en advies. Aan deze berekening kunnen geen rechten worden ontleend; het dient enkel als indicatie.

Documentatie

Zonnegrenzen bekijken

Op de kaart

Inwoners in Zoetermeer

Cijfers voor postcodegebied 2721

Totaal aantal inwoners
10975 inwoners
Mannen
49%
Vrouwen
51%

Inwoners in Zoetermeer

Cijfers voor postcodegebied 2721

tot 15 jaar
23%
15 tot 25 jaar
12%
25 tot 35 jaar
27%
45 tot 65 jaar
25%
65 en ouder
13%

Huishoudens in Zoetermeer

Cijfers voor postcodegebied 2721

Eenpersoons zonder kinderen
23%
Meerpersoons zonder kinderen
26%
Huishoudens zonder kinderen
49%

Huishoudens in Zoetermeer

Cijfers voor postcodegebied 2721

Huishoudens met één kind
10%
Huishoudens met meerdere kinderen
42%
Huishoudens met kinderen
52%

Woningen in Zoetermeer

Cijfers voor postcodegebied 2721

Woningen voor 1945
1%
Woningen tussen 1945 en 1965
1%
Woningen tussen 1965 en 1975
1%
Woningen tussen 1975 en 1985
1%
Woningen tussen 1985 en 1995
1%

Woningen in Zoetermeer

Cijfers voor postcodegebied 2721

Woningen tussen 1995 en 2005
10%
Woningen tussen 2005 en 2015
87%
Woningen na 2015
3%
Huurwoningen
40%
Koopwoningen
60%

Overige in Zoetermeer

Cijfers voor postcodegebied 2721

Gemiddelde WOZ waarde
€ 333.000,-
Personen onder de 65 met uitkering
Niet beschikbaar

Overige in Zoetermeer

Cijfers voor postcodegebied 2721

Adressen per km²
1710
Stedelijkheid (schaal 1 op 5)
80%
Postcode kaart 2721 Gemeente kaart zoetermeer

Indien u vragen heeft of u wilt een bezichtiging inplannen, dan kunt u gebruik maken van het formulier hiernaast. Er zal daarna op korte termijn contact met u worden opgenomen.

Willem Dreeslaan 214

2729NJ, Zoetermeer

079 - 203 3059 info@kleurrijkmakelaars.nl www.kleurrijkmakelaars.nl

Kleurrijk NVM Makelaars & Taxateurs Zoetermeer

Bij Kleurrijk NVM Makelaars & Taxateurs staan wij voor u klaar. Bent u op zoek naar een makelaar die altijd bereikbaar is, snel handelt en u begeleidt bij de complexe aspecten van de aan- of verkoop van uw woning? Dan bent u bij ons aan het juiste adres. Met jarenlange ervaring in Zoetermeer, Lansingerland en Rotterdam bieden wij u deskundig advies. Wij verwelkomen u graag op ons hoofdkantoor in Zoetermeer aan de Willem Dreeslaan 214.

Kleurrijk NVM Makelaars & Taxateurs is de juiste keuze als u:

• Op zoek bent naar een specialist in aan- en verkoopbegeleiding;

• Waarde hecht aan laagdrempelige communicatie;

• Een voorkeur heeft voor duidelijke en directe communicatie;

• Belangrijk vindt dat uw makelaar goed naar u luistert;

• Het prettig vindt als uw makelaar flexibel beschikbaar is;

• Altijd direct contact wilt met uw makelaar;

• Een onafhankelijke taxatie wenst van uw woning door een van onze registertaxateurs (NWWI/NRVT).

Passie voor het vak

Vinod Lachmon, Register NVM-makelaar, heeft jarenlange ervaring opgedaan bij diverse grote makelaarskantoren in regio’s zoals Zoetermeer, Rotterdam, Lansingerland en Gouda. Hij beschikt over uitgebreide kennis en een groot netwerk. Vinod onderscheidt zich door zijn betrokkenheid, juridische precisie en de bereidheid om ook na de aan- of verkoop voor zijn klanten klaar te staan.

Kleurrijk NVM Makelaars & Taxateurs Zoetermeer
Reviews Kleurrijk NVM makelaars & taxateurs

Rijnstroom 16, Zoetermeer

Vraagprijs: € 825.000 k.k. - Verkocht

Helaas, deze woning is verkocht!

Net te laat, deze woning is al verkocht. Laat een zoekopdracht bij ons achter zodat wij u direct kunnen helpen wanneer er nieuw aanbod beschikbaar komt.